
ЖК «Красная
площадь»
Стоимость проекта
1 527 530 ₽
Площадь квартиры
43,5 м²
Срок выполнения
40 дней
Бюджет работ
710 980 ₽
О проекте
Как превратить квартиру
в маникюрный кабинет
Ремонт квартиры — это всегда вызов. Но что если стоит задача не просто обновить жильё, а полностью изменить его функциональное назначение? Именно с таким запросом пришла заказчица этого проекта в ЖК «Красная площадь».
Аренда коммерческих помещений дорожает, а спрос на услуги красоты только растёт. Жилая площадь в новом доме с хорошей звукоизоляцией и современными коммуникациями — идеальная база для уютного кабинета, где клиенты чувствуют себя как дома.
Мы выбрали путь минимализма и функциональности: нейтральная бежевая палитра с пастельными акцентами, продуманное освещение для работы с цветом, компактная рабочая зона и зона ожидания — всё в 43,5 м².
Концепция
Нейтральные тона и продуманный свет
Бежевый — универсальный оттенок, создающий тепло и уют. Мягкие пастельные акценты задают лёгкую, расслабляющую атмосферу. А правильный свет — залог точного цвета лака.
Нейтральная палитра
Бежевые стены с акцентами светло-розового и мятного. Цвета не перегружают пространство и создают профессиональный фон.
Комбинированное освещение
Тёплый и холодный свет в рабочей зоне — чтобы оттенки лаков и кожи выглядели естественно при любом времени суток.
Функциональное зонирование
Рабочая зона с компактным столом из искусственного камня, зона ожидания с диваном и журнальным столиком.
465+
отремонтированных квартир
40
рабочих дней
100%
прозрачность бюджета
Этапы работ
Что было сделано
Полный цикл — от демонтажа до финального клининга за 40 рабочих дней
Особое внимание уделили электрике: для кабинета красоты важно достаточное количество розеток и раздельные линии для оборудования.
Результат
Фотографии проекта
Фото и видеоотчёт по ходу работ доступен в нашем Telegram-канале

ЖК «Красная площадь»
Общий вид кабинета

ЖК «Красная площадь»
Интерьер

ЖК «Красная площадь»
Детали отделки

ЖК «Красная площадь»
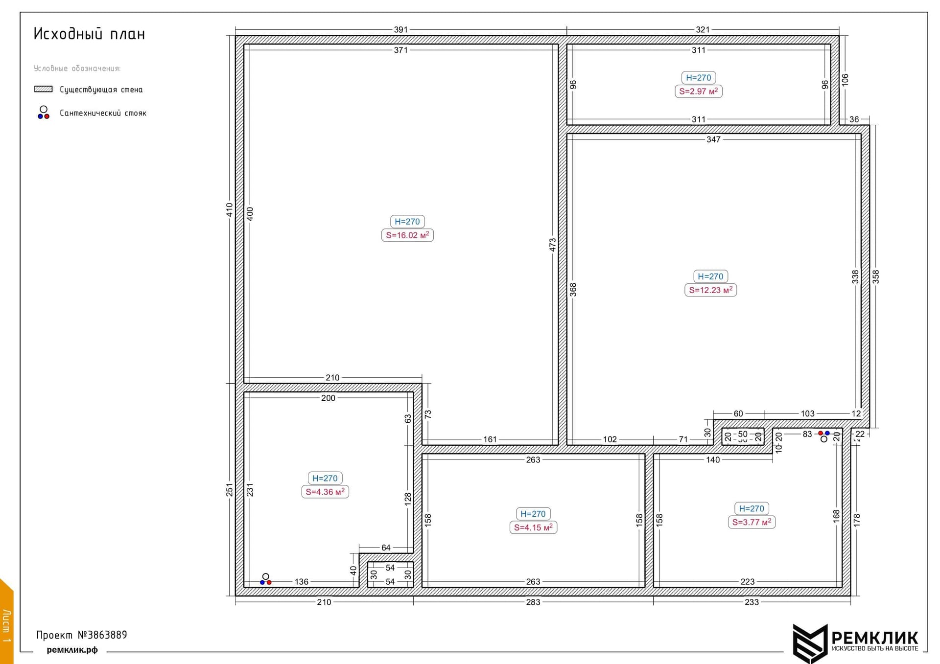
Планировка

ЖК «Красная площадь»
Интерьер кабинета

ЖК «Красная площадь»
Процесс работ

ЖК «Красная площадь»
Процесс работ

ЖК «Красная площадь»
Материалы
Видеообзор
Обзор готового кабинета
Однокомнатная квартира в Краснодаре — ЖК «Красная площадь»
Прозрачность
Бюджет проекта
Каждая трата согласовывается и фиксируется. Чеки на все материалы предоставляются заказчику. Поэтапная оплата — никаких сюрпризов в конце.
Материалы
чеки предоставлены
816 550 ₽
Стоимость работ
по договору
710 980 ₽
Итого
1 527 530 ₽
Итог
Нестандартный проект — стандартное качество
Этот проект показывает: хороший ремонт — это не только про жильё. Правильный подход, нейтральная палитра и продуманная функциональность превращают квадратные метры в работающий бизнес.
Если вам тоже нужен ремонт с нестандартной задачей — просто расскажите о ней. Мы найдём решение.

