
Экспресс-дизайн интерьера в Краснодаре
Нужно быстро подготовить квартиру к ремонту? Сделаем экспресс-дизайн с планировкой, расстановкой мебели и подбором решений под ваш бюджет — без переплаты за полный проект.
- до 70% дешевле полного проекта
- готово за несколько дней
- можно сразу начинать ремонт
1–5 дней
срок выполнения
до 70%
экономия vs полный проект
3
варианта планировки
500+
реализованных проектов
О формате
Что такое экспресс-дизайн интерьера
Быстрый дизайн квартиры — это не компромисс, а осознанный выбор формата. Экспресс-дизайн интерьера включает только ключевые решения для подготовки к ремонту: без лишних чертежей, без длительного ожидания — простой дизайн интерьера, который работает на практике.
Минимальный дизайн-проект даёт всё необходимое для старта ремонта. Особенно актуально для студий и небольших квартир, где важна планировка квартиры с грамотным зонированием пространства и правильной расстановкой мебели.
Для кого
Кому подходит экспресс-дизайн квартиры
Это формат для тех, кто ценит время и хочет избежать лишних затрат на дизайн.
Нужно быстро начать ремонт
Когда ждать 2–4 недели полного проекта нет возможности, а ремонт уже запланирован.
Ограничен бюджет на дизайн
Экономия до 70% по сравнению с полным проектом — получаете нужный результат без переплаты.
Небольшая квартира
Студия, однокомнатная или двухкомнатная — форматы, где достаточно базового проекта.
Не нужен полный проект
Если чертежи и 3D-визуализация не требуются — экспресс решает задачу оптимально.
Важно практичное решение
Нет лишних этапов и документации — только то, что нужно для старта ремонта.
Планируете ремонт квартиры под ключ
Получаете готовую планировку и сразу передаёте её строителям.
Состав услуги
Что входит в экспресс-дизайн
Дизайн без сложной документации — только оптимальное решение для ремонта, с которым можно сразу начинать работы.

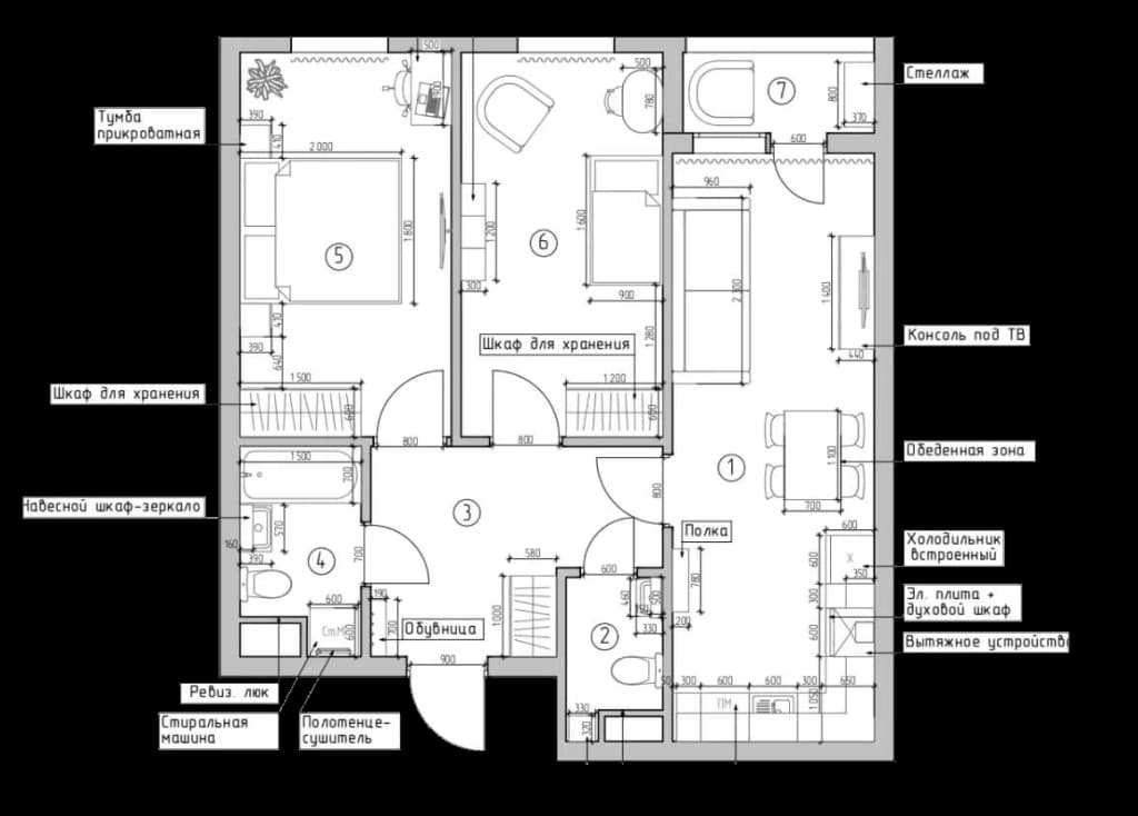
План расстановки мебели
Дизайнер изучит ваши вкусы и потребности, создаст функциональное пространство, которое будет отражать вашу личность.

До 3-х вариантов планировочного решения
Доверьте нам создание оптимального планировочного решения — превратите ваше пространство в идеальное место для жизни.

Подбор чистовых материалов
Учитываем функциональность помещения, стиль интерьера, бюджет и личные предпочтения при выборе материалов.
Сравнение
Чем отличается от полного дизайн-проекта
Экспресс-дизайн — это упрощённый формат без избыточной документации. Подходит для типовых задач, когда нужен результат быстро и без лишних этапов.
ЭЭкспресс-дизайн
- Выполняется за 1–5 дней
- Значительно дешевле
- Планировка и расстановка мебели
- Рекомендации по материалам
- Подходит для большинства квартир
ППолный дизайн-проект
- 2–4 недели разработки
- Рабочие чертежи и 3D-визуализация
- Полный комплект документов для строителей
- Авторский надзор при ремонте
- Для сложных и дорогих объектов
Если нужен полный проект с визуализацией и рабочими чертежами — смотрите страницу «Дизайн интерьера».
Этапы
Как проходит работа
Понятный проект для строителей — без лишних согласований. Готовое решение для ремонта передаётся сразу после утверждения: можно сразу начинать ремонт.
Заявка и консультация
Рассказываете о квартире, задачах и бюджете. Обсуждаем формат и состав проекта.
Анализ квартиры и задач
Изучаем планировку, фотографии и технические условия. Это основа подготовки к ремонту — уточняем пожелания по стилю и функциональности.
Разработка вариантов планировки
Готовим до 3-х вариантов: расстановка мебели, зонирование пространства, оптимальные проходы.
Согласование решения
Выбираете лучший вариант, при необходимости вносим правки. Выбор материалов и рекомендации по отделке — на этом же этапе.
Передача итогового дизайна
Получаете доступный дизайн интерьера в PDF: планировка, рекомендации по материалам, цветовое решение. Бюджетный дизайн без переплаты.
Получите консультацию дизайнера
Обсудим вашу квартиру, задачи и бюджет. Подберём оптимальный формат проекта.
Экономия до 70% на дизайн-проекте квартиры
Кейсы
Примеры экспресс-дизайна в Краснодаре
Проекты выполнены в формате экспресс-дизайна и адаптированы под бюджет заказчика.



Дизайнер интерьера
Надежда Алексеева
Наши дизайнеры помогают быстро принять решения и адаптируют проект под реальные условия ремонта в Краснодаре.
Преимущества
Тарифы
Стоимость экспресс-дизайна
Стоимость экспресс-дизайна зависит от площади и задач. Цены указаны за всю квартиру целиком.
1-комнатная
до 40 м²
50 000 ₽
25 000 ₽
- Срок — до 5 дней
- До 3-х планировочных решений
- Консультация по телефону
- 2 круга правок включены
- Проект в формате PDF
2-комнатная
до 60 м²
60 000 ₽
30 000 ₽
- Срок — до 5 дней
- До 3-х цветовых решений
- Консультация по телефону
- 2 круга правок включены
- Проект в формате PDF
3-комнатная
до 80 м²
70 000 ₽
35 000 ₽
- Срок — до 7 дней
- До 3-х планировок и цветов
- Консультация по телефону
- 2 круга правок включены
- Проект в формате PDF
Частный дом
индивидуально
По запросу
- Срок — до 10 дней
- До 3-х вариантов планировок
- До 3-х цветовых решений
- Консультация по телефону
- 2 цикла правок включены
- Проект в формате PDF
Это оптимальный вариант, если нужен дизайн-проект недорого и без лишних этапов. После разработки можно сразу переходить к ремонту квартир.
Частые вопросы
Вопросы и ответы
Сколько стоит экспресс-дизайн интерьера?+
Сколько времени занимает экспресс-дизайн?+
Чем экспресс-дизайн отличается от полного дизайн-проекта?+
Можно ли сразу начинать ремонт после экспресс-дизайна?+
Можно ли расширить проект до полного дизайн-проекта?+
Экспресс-дизайн интерьера в Краснодаре
Экспресс-дизайн интерьера в Краснодаре — доступный дизайн интерьера для тех, кто хочет быстро подготовить квартиру к ремонту без переплаты. Дизайн перед ремонтом в таком формате особенно актуален для ремонта студии и небольших квартир, где важно грамотно организовать пространство.
Бюджетный дизайн квартиры включает планировку квартиры, расстановку мебели и рекомендации по отделке — готовое решение для ремонта уже через несколько дней. Значительно быстрее, чем полный дизайн интерьера.
Если нужен быстрый дизайн квартиры перед ремонтом — этот формат даёт оптимальное решение для ремонта без лишних этапов. Можно сразу начинать ремонт и передавать проект строителям.
Простой дизайн интерьера без лишних чертежей особенно востребован при ремонте однокомнатной квартиры или двухкомнатной квартиры — там хватает базовой планировки и выбора материалов для старта работ.