
Двухкомнатная квартира · 64 м²
ЖК Кубанский
Полный ремонт под ключ с удалённым контролем через приложение. Керамогранит под мрамор, душевая строительного исполнения, виниловые обои.
Площадь
64 м²
Срок
115 дней
Стоимость
2 050 762 ₽
Материалы
1 100 639 ₽
Работы
950 123 ₽
О проекте
Ремонт без личного присутствия —
как это работает
Заказчик контролировал весь процесс дистанционно через приложение 101 — фотоотчёты, видео, контроль финансов. Когда встал вопрос о выборе керамогранита, мы просто отправили несколько вариантов — он выбрал тот, что понравился.
Такой подход требует высокого уровня доверия и чёткой системы отчётности. Именно это мы и обеспечиваем — прозрачно, без сюрпризов, по договору.

ЖК «Кубанский», Краснодар
Ключевые решения
Что сделали в квартире
Удалённый контроль
Весь ремонт заказчик контролировал дистанционно через приложение 101 — фотоотчёты, видео и финансы в режиме реального времени.
Керамогранит под мрамор
Пол в прихожей и санузлах выполнен из керамогранита — прочного, долговечного материала с эффектом мрамора.
Душевая строительного исп.
Поддон из керамической плитки вместо пластикового модуля — уникальный дизайн, идеально вписанный в интерьер.
Натяжные потолки
Скрывают все неровности базового потолка, точечные светильники подчёркивают зонирование и создают уютную атмосферу.
Ход работ
Этапы ремонта
01
Демонтаж и подготовка
Снятие старых покрытий, выравнивание стен и полов, разметка под перегородки.
02
Электрика
Полная замена проводки, установка розеток, выключателей и выводов под кондиционеры.
03
Сантехника
Разводка труб, инсталляция в туалете, подключение стиральной машины и раковины.
04
Стяжка и керамогранит
Наливная стяжка пола, укладка керамогранита под мрамор в прихожей и санузлах.
05
Душевая кабина строй. исп.
Поддон из керамической плитки, стеклянное ограждение — индивидуальный дизайн без компромиссов.
06
Стены и обои
Штукатурка, грунтовка, поклейка метровых виниловых обоев на флизелиновой основе.
07
Ламинат в комнатах
Укладка ламината с подложкой в спальнях, монтаж плинтусов.
08
Натяжные потолки
Установка натяжных потолков с точечными светильниками для зонирования пространства.
09
Финальная отделка
Монтаж дверей, розеток, светильников, финальная уборка и сдача объекта.
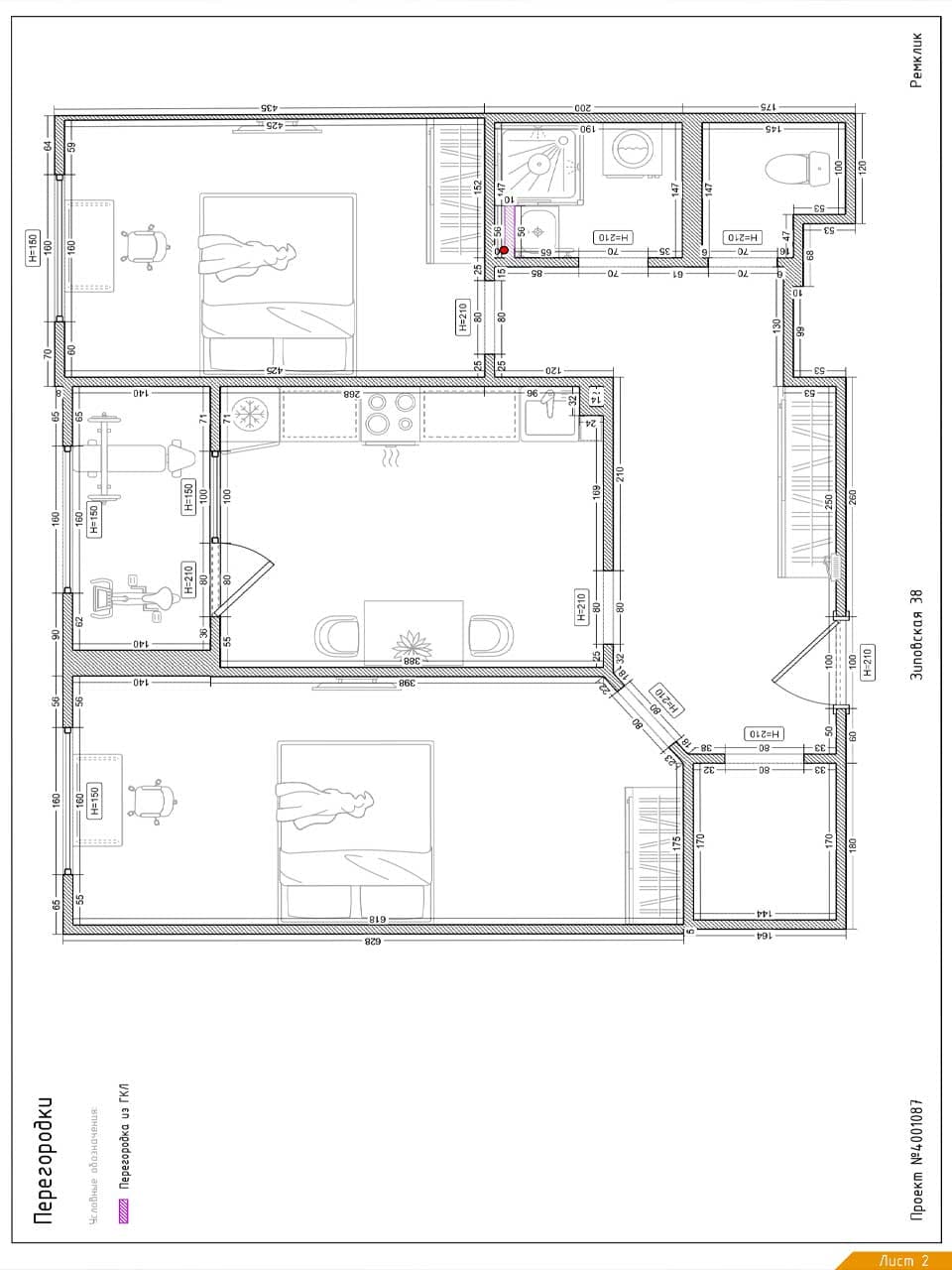
Планировка
Рабочий чертёж
Все работы выполнены строго по рабочим чертежам — Зиповская 38, проект №4001087.
Нажмите на чертёж, чтобы увеличить

Рабочий чертёж · проект №4001087
Фотогалерея
Готовый результат
Фото и видеоотчёты по ходу работ — в нашем Telegram-канале

ЖК «Кубанский»
Прихожая — обзор

ЖК «Кубанский»
Коридор

ЖК «Кубанский»
Спальня

ЖК «Кубанский»
Спальня — окно

ЖК «Кубанский»
Прихожая — 2

ЖК «Кубанский»
Санузел — душ и зеркало

ЖК «Кубанский»
Санузел — душевая кабина

ЖК «Кубанский»
Санузел — туалет
Видеообзор
Обзор квартиры после ремонта
Двухкомнатная квартира 64 м² в ЖК «Кубанский» — видеообзор готового объекта
Хотите так же?
Сделаем ремонт —
с контролем или без присутствия
Работаем по договору, с фотоотчётами на каждом этапе и фиксированной сметой. Звоните — обсудим ваш объект.


